Contents of this issue
Ngā kai o roto i tēnei putanga
Contents
Ngā rārangi take
- TITLE_SECTIONMasthead
- GROUPING_NODEPage 1 Advertisements
- GROUPING_NODEPage 2 Advertisements
- ARTICLEThe Otago Witness
- ARTICLECALENDAR FOR THE WEEK.
- ARTICLEPASSING NOTES.
- ARTICLEUntitled
- GROUPING_NODEPage 3 Advertisements
- ARTICLEUntitled
- ARTICLEUntitled
- ARTICLECARRIAGE OF COAL
- ARTICLEUntitled
- GROUPING_NODEPage 4 Advertisements
- ARTICLEOn the Rest of Humour
- ARTICLERETURNED SOLDIERS
- ARTICLETHE BEAUTY OF THE RAIN
- ARTICLEUTILISING WASTE LAND
- ARTICLEUntitled
- ARTICLECurrent Humour
- GROUPING_NODEPage 5 Advertisements
- ARTICLETHE Novelist
- ARTICLEUntitled
- ARTICLEMAIN HIGHWAYS BOARD
- ARTICLESTOCK FOODS
- ARTICLEUntitled
- GROUPING_NODEPage 7 Advertisements
- ARTICLEBEST SHORT STORIES
- GROUPING_NODEPage 9 Advertisements
- ARTICLETHE PRICE OF POSSIBILITY
- ARTICLECOAL FROM NEWCASTLE
- ARTICLEIN TOUCH WITH NATURE
- ARTICLEOTAGO INSTITUTE
- ARTICLEUntitled
- GROUPING_NODEPage 10 Advertisements
- ARTICLETHE GARDEN
- ARTICLEANSWERS TO CORRESPONDENTS
- ARTICLESWEET PEA CULTURE
- ARTICLEOTAGO HOSPITAL BOARD
- ARTICLEUNIVERSITY LAW STUDENTS
- ARTICLEUntitled
- ARTICLETHE APIARY.
- ARTICLEUntitled
- GROUPING_NODEPage 11 Advertisements
- SECTIONFarm and Station
- GROUPING_NODEPage 12 Advertisements
- ARTICLEOUT AND ABOUT
- ARTICLEMEAT PRODUCERS’ BOARD.
- ARTICLEWORK FOR THE UNEMPLOYED
- ARTICLECANTERBURY BUDGET.
- ARTICLEFOOT-AND-MOUTH DISEASE
- ARTICLETAIERI AGRICULTURAL SOCIETY
- ARTICLETHE NORTH ISLAND.
- GROUPING_NODEPage 14 Advertisements
- ARTICLEPRODUCE MARKETS.
- ARTICLETHE DAIRY INDUSTRY
- ARTICLEThe Country-Woman's Corner
- GROUPING_NODEPage 15 Advertisements
- ARTICLEW.D.F.U.
- GROUPING_NODEPage 16 Advertisements
- ARTICLEOUR YORKSHIRE LETTER.
- ARTICLEFARMERS’ UNION
- ARTICLEOTAGO WINTER SHOW
- ARTICLEUntitled
- GROUPING_NODEPage 17 Advertisements
- ARTICLEDUNEDIN MARKETS.
- ARTICLECOMMERCIAL
- ARTICLEREFORM VICTORY
- ARTICLEPOLITICAL SITUATION
- ARTICLERETURNED SOLDIERS
- ARTICLEUntitled
- GROUPING_NODEPage 19 Advertisements
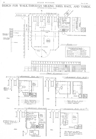
- ARTICLEDESIGN FOR WALK-THROUGH MILKING SHED, RACE, AND YARDS.
- ARTICLEMILKING SHED, RACE, AND YARDS.
- ARTICLEUntitled
- ARTICLESUPERINTENDENT WILLIS
- ARTICLELONG FLIGHT ENDS.
- ARTICLEHARBOUR IMPROVEMENT
- ARTICLELOSS OF THE PROGRESS
- GROUPING_NODEPage 21 Advertisements
- SECTIONSALARIES AND WAGES.
- GROUPING_NODEPage 22 Advertisements
- ARTICLEHAWKE’S BAY EARTHQUAKE
- ARTICLEMOTOR DRIVERS’ LICENSES
- ARTICLEUntitled
- ARTICLECOUNTRY SCHOOL TEACHER
- ARTICLETHE RAILWAYS
- ARTICLEUntitled
- GROUPING_NODEPage 24 Advertisements
- ARTICLENORTH OTAGO.
- ARTICLEPOSITION IN AUSTRALIA.
- ARTICLEUntitled
- ARTICLESERIES OF BURGLARIES
- ARTICLENAPIER HOSPITAL
- ARTICLEAIR-STRUCK YOUTH
- ARTICLEUntitled
- ARTICLEAMERICAN AFFAIRS.
- ARTICLEBUTTER IMPORTS
- ARTICLELEAGUE OF NATIONS.
- ARTICLEDOMINION FINANCE
- ARTICLEPOSITION IN INDIA.
- ARTICLESIGNOR MUSSOLINI
- ARTICLEUntitled
- ARTICLEA SUCCESS
- ARTICLECOUNTY COUNCILS
- ARTICLEUntitled
- ARTICLETHE DUCKHAM ROMANCE.
- ARTICLENEWS IN BRIEF
- ARTICLEHOCKEY
- ARTICLEAN EXCITING VENTURE.
- ARTICLEUntitled
- ARTICLECRICKET
- ARTICLENEWS IN BRIEF.
- ARTICLEFANCIERS’ PAGE.
- ARTICLETHE KENNEL.
- ARTICLESHEEP DOG TRIALS.
- ARTICLESHEEP DOG NOTES.
- ARTICLEPOULTRY NOTES.
- GROUPING_NODEPage 30 Advertisements
- ARTICLETEMPERANCE REFORM
- ARTICLEUntitled
- ARTICLENUTS TO CRACK
- ARTICLEASTRONOMICAL NOTES FOR JUNE
- ARTICLEUntitled
- GROUPING_NODEPage 31 Advertisements
- ARTICLEMINING.
- ARTICLETHE WEST COAST.
- ARTICLEWASHING FOR GOLD
- GROUPING_NODEPage 32 Advertisements
- ARTICLEThe Country
- ARTICLESOUTHLAND TOPICS
- ARTICLEFIRE.
- ARTICLEUntitled
- GROUPING_NODEPage 33 Advertisements
- ARTICLECOMMERCIAL.
- ARTICLEUntitled
- ARTICLEMILITARY TRAINING
- ARTICLECASUALTIES.
- ARTICLEPERSONAL.
- ARTICLEUntitled
- ARTICLEPOST OFFICE NOTICES
- ARTICLEDEMONSTRATION BY MINERS
- ARTICLEDEATH OF PARENTS
- ARTICLEAUSTRALIAN LANDSCAPES
- ARTICLEDUMPING BY RUSSIA
- ARTICLEUntitled
- ARTICLEOTAGO EXPANSION LEAGUE
- ARTICLETWO UNDESIRABLES
- ARTICLETABLE OF CONTENTS.
- ARTICLEUntitled
- GROUPING_NODEPage 36 Advertisements
- ARTICLEOTAGO WITNESS ILLUSTRATIONS
- ARTICLENEW POST OFFICE FOR PALMERSTON
- ARTICLEMAKING THE ROUGH PLACES PLAIN
- ARTICLEA QUIET RETREAT IN CHRISTCHURCH.
- ARTICLECAMBRIDGE UNDERGRADUATES FLY TO AUSTRALIA.
- ARTICLECHANGES IN RAILWAY MANAGEMENT.
- ARTICLEWHEN LONG SKIRTS WERE REALLY POPULAR
- ARTICLESPREADING THE GOSPEL IN WESTERN INDIA.
- ARTICLETHE PASSING OF A WAR RELIC.
- ARTICLEA FLOATING HOME FOR THE WORKLESS.
- ARTICLEA PICTURESQUE ASHBURTON WEDDING.
- ARTICLEARCHITECTURAL ADDITIONS TO WELLINGTON COLLEGE
- ARTICLECRABS A TROPICAL NIGHTMARE
- ARTICLEKEEPING COOL IN THE HOT WEATHER.
- ARTICLETHE MOST HIGHLY PAID MANNEQUIN IN THE
- ARTICLETHE YOUTHFUL EXHIBITORS DISPLAY THEIR STOCK
- ARTICLESHOWING CARE AND INTEREST: BOYS’ AND GIRLS’ AGRICULTURAL CLUBS’ DISPLAY
- ARTICLEBOY AND GIRL MEMBERS OF THE AGRICULTURAL CLUB'S EXHIBIT AT THE SOUTHLAND WINTER SHOW, INVERCARGILL.
- ARTICLEQUEEN MARY’S INTEREST IN CHILDREN.
- ARTICLELAUNCH OF NEW SHIP FOR NEW ZEALAND
- ARTICLELADY WILFORD LAUNCHING THE RANGATIRA
- ARTICLEAMERICA HONOURS THOMAS HARDY
- ARTICLEIN MEMORY OF FLORENCE NIGHTINGALE: REUNION OF NURSES OF THE DUNEDIN HOSPITAL
- ARTICLEPEACEFUL BEAUTY: PLEASURE BOATS AT QUEENSTOWN
- ARTICLE”HOCKTIDE"—OR KISSING CEREMONY.
- ARTICLEAN UNUSUAL SCENE: WASHING-UP ON THE HUTT RIVER, WELLINGTON
- ARTICLEA FLASHLIGHT OF THE LAW FACULTY’S ANNUAL BALL, HELD IN THE CONCERT CHAMBER OF THE DUNEDIN TOWN HALL ON THURSDAY LAST.
- ARTICLEPRIME FAT BULLOCKS AT BURNSIDE
- ARTICLEA RETURN FLIGHT TO ENGLAND
- ARTICLETHE WORLDS OLDEST. BISHOP
- ARTICLE"ALL EYES WERE TURNED ON HIGH.”
- ARTICLETHE PUBLIC RECEPTION AT DARGAVILLE.
- ARTICLEMAKING THE GIDDY ASCENT.
- ARTICLETRACERY IN FUNGUS
- ARTICLEFIRST OFFICIAL VISIT OF LORD AND LADY BLEDISIDE TO NORTHERN WAIROA AND WAIPOUA.
- ARTICLESOLVED.
- ARTICLECROMWELL FROM THE AIR: TAKEN AT 800 FEET.
- ARTICLEGOLDEN WEDDING CELEBRATIONS IN TIMARU.
- ARTICLEMOTH CRASHES ON HANGAR ROOF,
- ARTICLEWHITE WINGS BEHIND THE PLOUGH.
- ARTICLEBIRTHS
- ARTICLEMARRIAGES
- ARTICLEDEATHS
- ARTICLEFOR THE EMPIRE’S CAUSE.
- ARTICLEDEATHS
- ARTICLEIN MEMORIAM.
- ARTICLEIN MEMORIAM.
- ARTICLEThe Otago Witness WITH WHICH IS INCORPORATED THE SOUTHERN MERCURY (TUESDAY, JUNE 2, 1931.) THE WEEK.
- ARTICLEUntitled
- GROUPING_NODEPage 45 Advertisements
- ARTICLENotes and Queries?
- ARTICLEUntitled
- ARTICLELAW QUERIES.
- ARTICLEUntitled
- ARTICLENEWS BY CABLE.
- ARTICLENELSON TO WELLINGTON
- GROUPING_NODEPage 47 Advertisements
- ARTICLEFOOTBALL
- ARTICLEUntitled
- ARTICLERugby Football in Dunedin: Southern and Alhambra Draw.
- ARTICLESATURDAY’S MATCHES.
- ARTICLESYDNEY DEFEATED.
- ARTICLERUGBY LEAGUE.
- ARTICLEASSOCIATION.
- ARTICLELAND & WATER.
- ARTICLEUntitled
- ARTICLEGOLF
- ARTICLELAWN TENNIS
- ARTICLEDUNEDIN COMPETITIONS SOCIETY
- ARTICLEWEATHER SUMMARY
- ARTICLEWAGE REDUCTIONS
- ARTICLEUntitled
- GROUPING_NODEPage 51 Advertisements
- SECTIONSporting
- GROUPING_NODEPage 52 Advertisements
- ARTICLEOBITUARY.
- ARTICLETHE TRUSTEES, EXECUTORS, AND AGENCY COMPANY
- ARTICLEUntitled
- GROUPING_NODEPage 56 Advertisements
- SECTIONThe Ladies; Page
- GROUPING_NODEPage 58 Advertisements
- GROUPING_NODEPage 59 Advertisements
- GROUPING_NODEPage 60 Advertisements
- ARTICLEOUR BABIES.
- ARTICLECOMPANY PROGRESS
- ARTICLEUntitled
- ARTICLEUntitled
- ARTICLEUNEMPLOYMENT.
- ARTICLESHIPWRECK RELIEF
- ARTICLESCHOOL DENTAL CLINICS
- ARTICLERADIO BROADCASTING
- ARTICLEHEAVY DEFALCATIONS
- ARTICLEUntitled
- SECTIONTHE SKETCHER
- GROUPING_NODEPage 63 Advertisements
- SECTIONThe Stage
- GROUPING_NODEPage 64 Advertisements
- ARTICLEDRAUGHTS
- ARTICLEAEROPLANE CRASH
- ARTICLEUntitled
- ARTICLEPATRIOTIC ASSOCIATION
- ARTICLESTATE ADVANCES
- ARTICLEUntitled
- ARTICLELEAGUE OF NATIONS UNION
- ARTICLEUntitled
- GROUPING_NODEPage 65 Advertisements
- ARTICLEOTAGO HARBOUR BOARD
- ARTICLEIRISH MOSS.
- ARTICLECHARGE OF ARSON
- ARTICLEUntitled
- ARTICLEMotor and Cycle
- ARTICLEFIRE TRAGEDY
- ARTICLEUntitled
- GROUPING_NODEPage 67 Advertisements
- SECTIONLITERATURE and LIFE
- GROUPING_NODEPage 68 Advertisements
- ARTICLEROMANCE OF A HEART
- ARTICLETRUST FUND DISPOSAL
- ARTICLEUntitled
- ARTICLETHE OPERA TO-DAY
- ARTICLEKING EDWARD TECHNICAL COLLEGE
- ARTICLEEARLY SETTLERS’ ASSOCIATION
- ARTICLEUntitled
- GROUPING_NODEPage 70 Advertisements
- SECTIONDot's Little Tolk Inaugurated July 16, 1886.
- ARTICLEDOMINION’S EXPORT TRADE
- GROUPING_NODEPage 74 Advertisements
- ARTICLECHESS.
- ARTICLEUntitled
- ARTICLEMULTUM IN PARVO
- ARTICLECOMPETITIONS SOCIETY
- ARTICLEUntitled
- GROUPING_NODEPage 75 Advertisements
- ARTICLEEditor's Walles
- ARTICLEAN INGENIOUS DEVICE
- SECTIONSHORT STORIES
- GROUPING_NODEPage 77 Advertisements
- GROUPING_NODEPage 78 Advertisements
- ARTICLEFROM NORTH OF TWEED.
- ARTICLEUntitled
- ARTICLE“HE MADE THE STARS ALSO”
- ARTICLETEMPERANCE COLUMN.
- ARTICLEKIDNAPPING IN CHINA
- ARTICLEUntitled
- GROUPING_NODEPage 80 Advertisements